Erstbezug auf zwei Etagen mit Eigengarten

Eckdaten
- 100,76 m²
- 3 Zimmer
- Hochparterre
- Balkon, Terrasse
Projekt
Chez
- 1190 Wien
- Beziehbar Q3 2027
Beschreibung
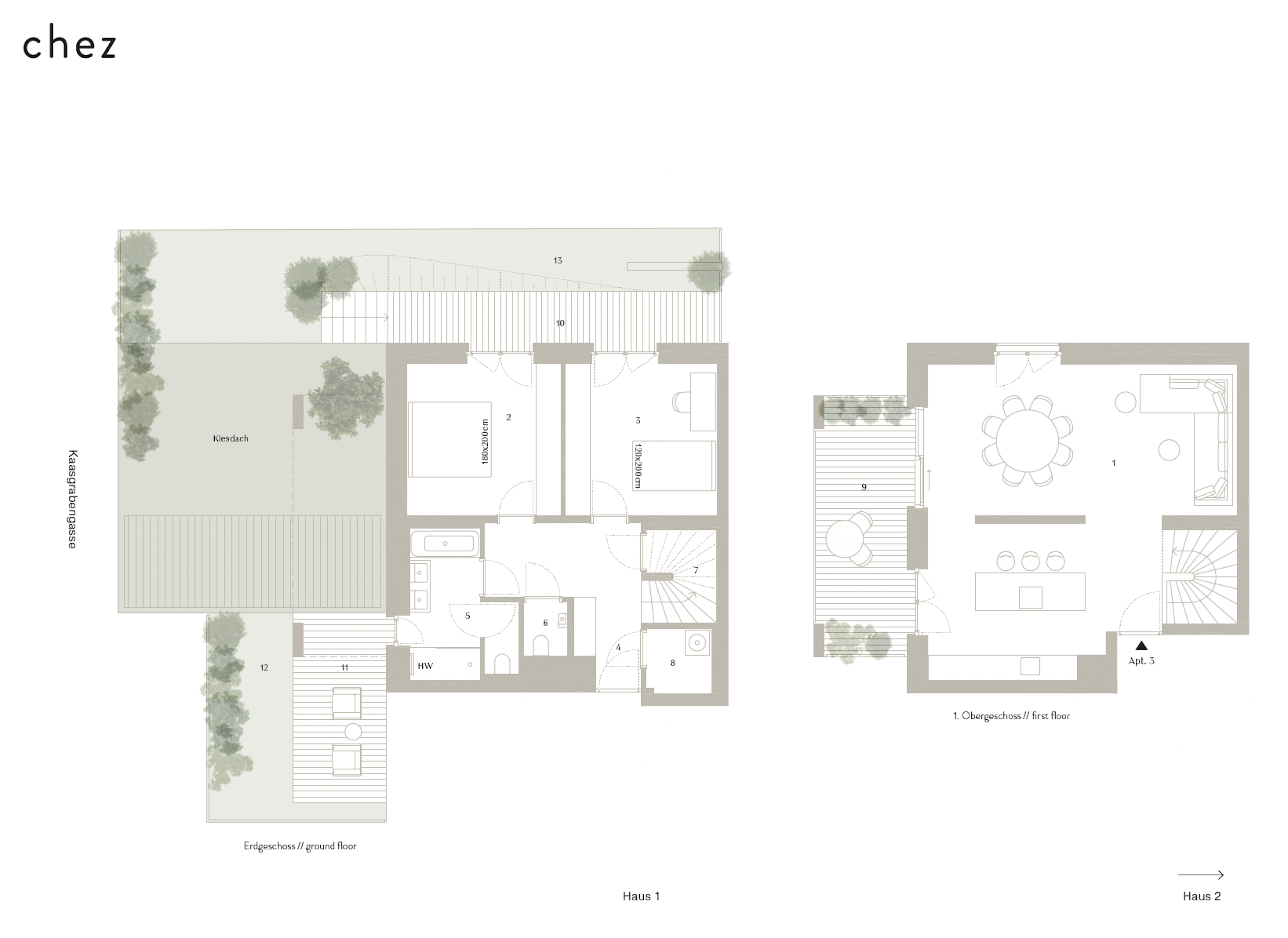
Diese moderne Maisonette-Wohnung erstreckt sich über zwei Etagen und bietet viel Raum für individuelle Wohnwünsche. Im Erdgeschoss befindet sich eine großzügige Wohnküche, die viel Platz für gemütliche Stunden bietet, sowie zwei weitere Zimmer, die als Schlafzimmer oder Büro genutzt werden können. Das Obergeschoss bietet zusätzliche Rückzugsmöglichkeiten und praktische Abstellräume.
Zwei Terrassen, ein Balkon und zwei private Gartenbereiche schaffen vielfältige Möglichkeiten, das Leben im Freien zu genießen. Ein Kellerabteil bietet zusätzlichen Stauraum. Diese Wohnung vereint großzügiges Wohnen mit einem hohen Maß an Privatsphäre und Komfort in einer begehrten Lage.
Die in den Visualisierungen gezeigten Abbildungen dienen der Veranschaulichung des Projekts und sollen einen Eindruck von dem angestrebten Stil und der Atmosphäre vermitteln. Bitte beachten Sie, dass diese Darstellungen nicht immer exakt den tatsächlichen Grundrissen der Apartments entsprechen.
Exklusiv für Member
- Grundriss mit Detailinfos
- Exposé
- Bau- & Ausstattungsbeschreibung




Details
- Gesamtfläche196,41 m²
- Wohnnutzfläche100,76 m²
- Zimmer3
- StockHochparterre
- Balkon14,12 m²
- Raumhöhe2,5 m²
- Top1.3
- Terrasse40,38 m²
- Kellerabteil2,6 m²
- BeziehbarQ3 2027
Energie
- Heizwärmebedarf38 kWh/m²
- HWB KlasseB
- HeizartSole- & Wasserwärmepumpe mit Tiefenbohrung
- fGEE0,74
Nebenkosten
- Grunderwerbssteuer3,5%
- Eintragungsgebühr1,1%
- Kaufvertragserrichtungskosten 1,5% zzgl. 20% USt.
- Maklerprovision3% zzgl. 20% USt.
Mehr von Chez
Ähnliche Wohnungen
Anfrage zu Top 1.3
Werde CROWND Member für Zugriff zu allen Informationen. Mehr dazu






















