CHIPPERFIELD APARTMENTS: Smartapartment mit weitläufiger Terrasse und Grünblick

Eckdaten
- 57,54 m²
- 2 Zimmer
- 2. Obergeschoß
- Terrasse
Projekt
Crownd by Chipperfield
- 1130 Wien
- Beziehbar ab sofort
Beschreibung
Luxus fürs Herz bietet dieses 2 Zimmer Apartment mit einer Wohnfläche von 57,97 m². Die offene Grundrissgestaltung vermittelt ein Gefühl von Leichtigkeit, während die weitläufige Terrasse dem Apartment seinen Charme verleiht. Durch große Glasfronten bahnt sich das Licht seinen Weg auch in die Innenräume und bringt die Bewohner auf erhellende Gedanken. Der Titel „At the Heart“ haltet das was er verspricht – Liebe auf den ersten Blick.
Exklusiv für Member
- Grundriss mit Detailinfos
- Exposé
- Bau- & Ausstattungsbeschreibung
- Virtuelle Tour
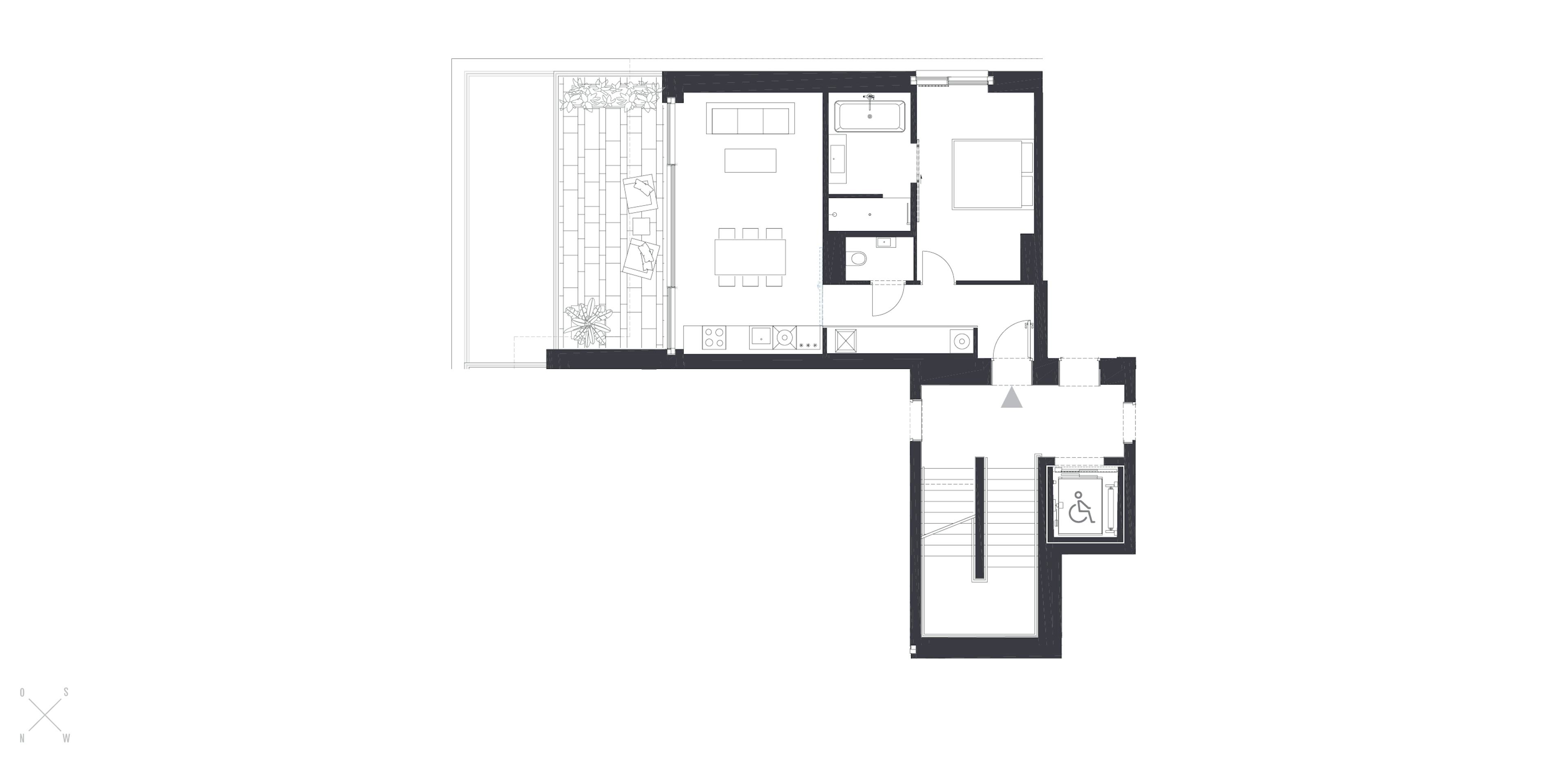
Grundriss
Virtuelle Tour





Details
- Gesamtfläche76,87 m²
- Wohnnutzfläche57,54 m²
- Zimmer2
- Stock2. Obergeschoß
- Raumhöhe2,6 m²
- BauteilStadtvilla 3
- Top7.3
- Terrasse19,33 m²
- Kellerabteil5,42 m²
- Fertigstellung2023
- Beziehbarab sofort
Energie
- Heizwärmebedarf24,93 kWh/m²
- HWB KlasseA
- HeizartWärmepumpe
Nebenkosten
- Grunderwerbssteuer3,5%
- Eintragungsgebühr1,1%
- Kaufvertragserrichtungskosten 1,5% zzgl. 20% USt.
- Maklerprovision3% zzgl. 20% USt.
Mehr von Crownd by Chipperfield
Ähnliche Wohnungen
Anfrage zu Top 7.3
Werde CROWND Member für Zugriff zu allen Informationen. Mehr dazu























