Top 6.2 THE PENTHOUSES: Maisonette-Penthouse mit großer Terrasse und Wienblick

Eckdaten
- 169,81 m²
- 4 Zimmer
- Dachgeschoß
- Balkon, Terrasse
Projekt
Crownd by Chipperfield
- 1130 Wien
- Beziehbar ab sofort
Beschreibung
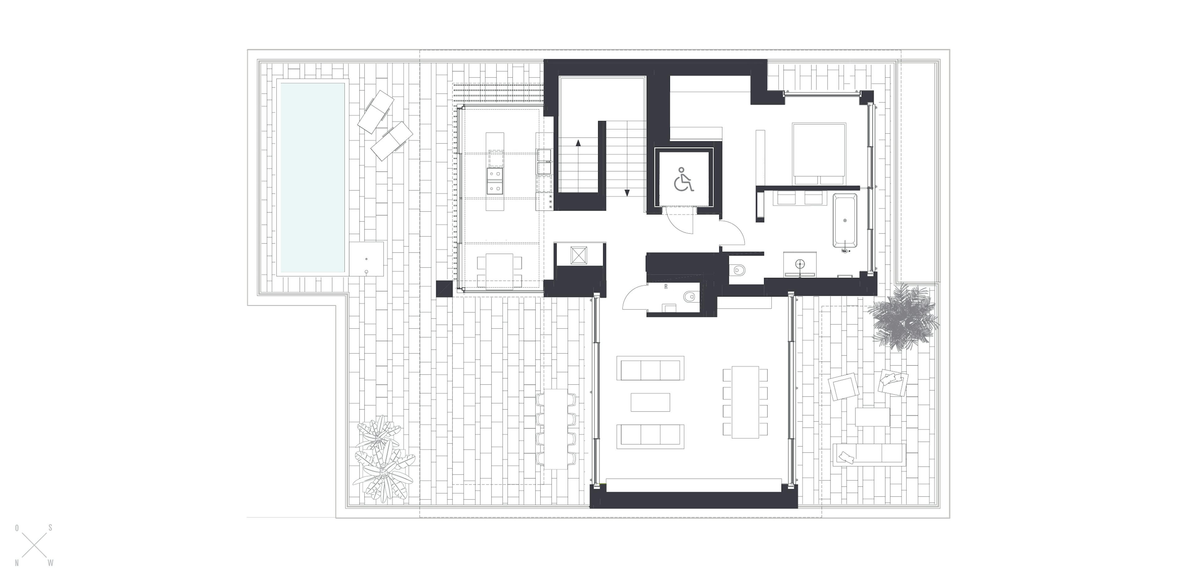
Das Penthouse „Head in the Clouds“ ist ein exklusives Highlight für anspruchsvolle Individualisten. Atemberaubende Aussicht, loftartige Raumaufteilung und einen Aufzug direkt von der Tiefgarage in den Wohnbereich - es ist fast, als würde man in den Wolken wohnen. Die 4 Zimmer sind auf wohlgeplanten 169,81 m² verteilt und glänzen mit ihren Features über zwei Ebenen. Die freistehende Kochinsel lädt dazu ein, dem Genuss noch eine Facette hinzuzufügen. Denn wer hier kulinarische Köstlichkeiten zubereitet, wird auf jeden Fall von den vielen Inspirationen geleitet, die hier zu finden sind. Der Pool auf der weitläufigen Terrasse ist so ausgerichtet, dass ganz Wien im Blickfeld liegt. Hier ist der Luxus entspannter Bestandteil jedes Details und jeder Raumlösung.
Exklusiv für Member
- Grundriss mit Detailinfos
- Exposé
- Bau- & Ausstattungsbeschreibung
- Virtuelle Tour
Grundriss
Virtuelle Tour





Details
- Gesamtfläche324,92 m²
- Wohnnutzfläche169,81 m²
- Zimmer4
- StockDachgeschoß
- Balkon42,64 m²
- Raumhöhe2,6 m²
- BauteilStadtvilla 2
- Top6.2
- Terrasse112,47 m²
- Kellerabteil6,03 m²
- Fertigstellung2023
- Beziehbarab sofort
Energie
- Heizwärmebedarf24,93 kWh/m²
- HWB KlasseA
- HeizartWärmepumpe
Nebenkosten
- Grunderwerbssteuer3,5%
- Eintragungsgebühr1,1%
- Kaufvertragserrichtungskosten 1,5% zzgl. 20% USt.
- Maklerprovision3% zzgl. 20% USt.
Videorundgang
Mehr von Crownd by Chipperfield
Ähnliche Wohnungen
Anfrage zu Top 6.2
Werde CROWND Member für Zugriff zu allen Informationen. Mehr dazu
































