RÉSIDENCE KUPKA: Traumhaft sanierte Altbauwohnung in Bestlage des 8. Bezirks

Eckdaten
- 130,4 m²
- 5 Zimmer
- 2. Obergeschoß
- Balkon
Beschreibung
Diese exklusive, komplett sanierte Altbauwohnung befindet sich im 2. Liftstock eines prachtvollen Gebäudes in einer der begehrtesten Lagen Wiens, mitten im charmanten 8. Bezirk. Mit einer großzügigen Wohnfläche von ca. 130 m² verteilt auf 5 Zimmer, bietet diese Wohnung höchsten Wohnkomfort und besticht durch klassische Eleganz und moderne Ausstattung.
• Wohnfläche: ca. 130 m² • Zimmer: 5 (davon 3 Schlafzimmer) • Bäder: 2, ausgestattet mit edlem Naturstein, Keramikfliesen und hochwertigen Steinberg Armaturen • Gästetoilette: ebenfalls hochwertig ausgestattet • Abstellraum: perfekt für Waschmaschine/Trockner und als Stauraum innerhalb der Wohnung nutzbar • Maßgefertigte Einbaumöbel: Stilvolle Waschtischunterschränke aus massivem Nussholz in beiden Bädern • Kleiner Klopfbalkon – perfekt, um den Charme der eines Altbaus bei einem Aperitivo zu genießen • Altbauflair mit hohen Decken, Altwiener Türbeschläge, Fischgrätparkett, historischem Kachelofen und originalen Stilelementen Lage: Die Liegenschaft befindet sich im Herzen des 8. Bezirks, umgeben von wunderschönen Gründerzeithäusern, zahlreichen Restaurants und bester Infrastruktur, direkt am Hamerlingpark. Die Josefstädter Straße versorgt Sie mit allen Geschäften des täglichen Bedarfs, die Straßenbahnlinie 2 bringt Sie innerhalb von fünf Minuten direkt in den ersten Bezirk. Diese außergewöhnliche Altbauwohnung verbindet den Charme der Vergangenheit mit modernstem Wohnkomfort und bietet ein einzigartiges Wohnerlebnis in einer der schönsten Gegenden Wiens. Für weitere Fragen bzw. zur Vereinbarung von Besichtigungsterminen steht Ihnen das Crownd Sales Team unter +43 1 361 61 61 oder [email protected] zur Verfügung.
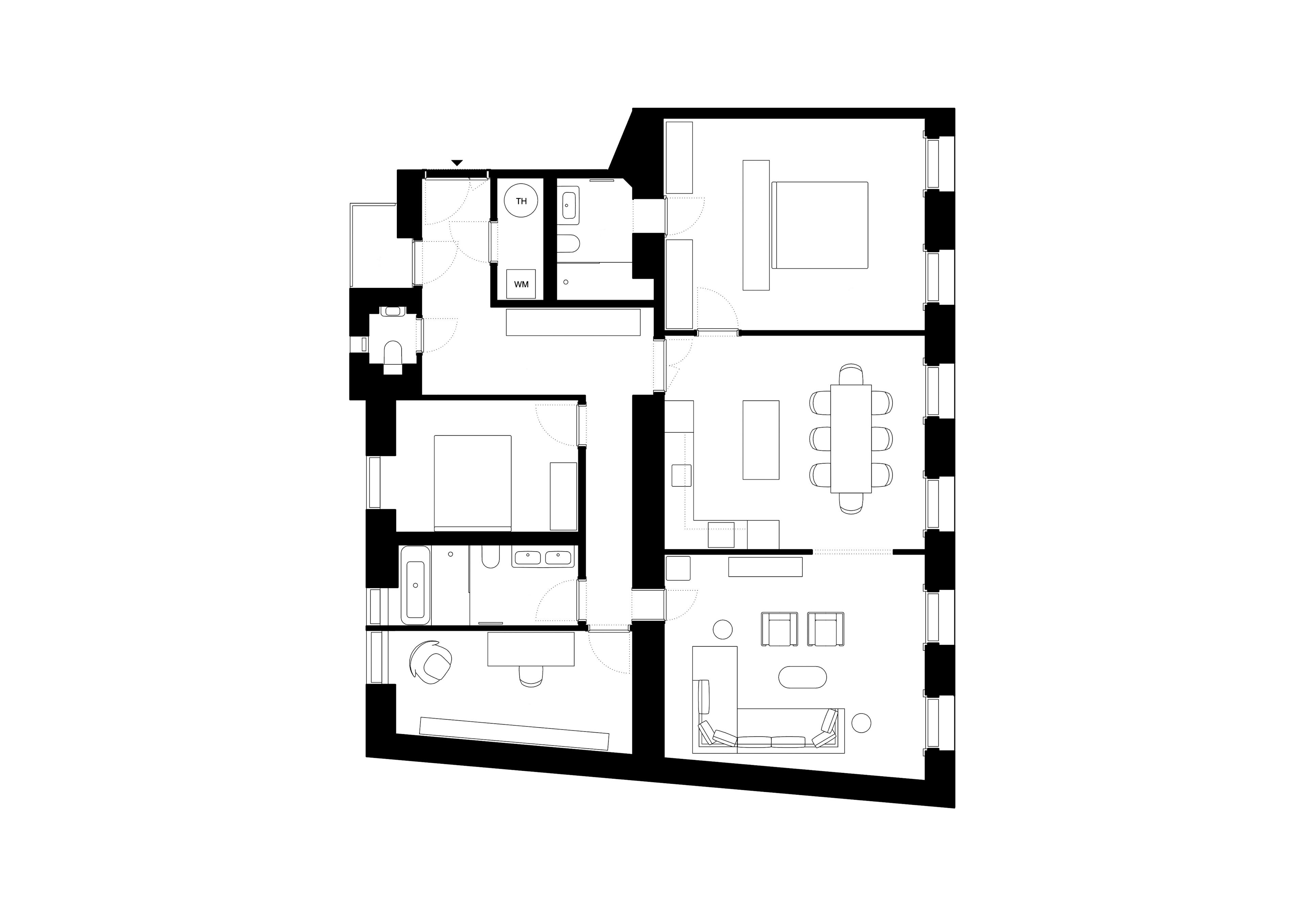
Grundriss
Virtuelle Tour





Details
- Gesamtfläche132 m²
- Wohnnutzfläche130,4 m²
- Zimmer5
- Stock2. Obergeschoß
- Balkon1,6 m²
- Top12A
- Kellerabteil3,4 m²
- Beziehbarab sofort
Energie
- HeizartGasetagenheizung über Heizkörper
Nebenkosten
- Grunderwerbssteuer3.5%
- Eintragungsgebühr1.1%
- KaufvertragserrichtungskostenJe nach Treuhänder/Vertragserrichter
- Maklerprovision3% zzgl. 20% USt.
Ähnliche Wohnungen
Anfrage zu Résidence Kupka
Werde CROWND Member für Zugriff zu allen Informationen. Mehr dazu















