Penthouse Luxus-Penthouse mit 116 m² Dachterrasse und Outdoor-Küche

Eckdaten
- 270,1 m²
- 5 Zimmer
- 1. Dachgeschoß
- Terrasse, Dachterrasse
Projekt
The Son
- 1080 Wien
- Beziehbar Q4 2021
Beschreibung
Das Penthouse bietet puren Luxus auf ca. 270 m² Wohnfläche, aufgeteilt auf zwei einzigartigen Ebenen. Im lichtdurchfluteten Wohnraum mit Raumhöhen bis zu 5 m genießt man einen herrlichen Blick über die Wiener Innenstadt. Das Highlight ist die 116 m² große Dachterrasse mit Outdoor-Küche und Infinity Pool, die jeden lauen Sommerabend zu etwas Besonderem werden lässt. An kalten Wintertagen sorgt der Spa-Bereich mit Sauna für die nötige Behaglichkeit. Das exklusive Penthouse besticht mit hochwertigster Ausstattung und edelsten Materialien.
Exklusiv für Member
- Grundriss mit Detailinfos
- Exposé
- Bau- & Ausstattungsbeschreibung
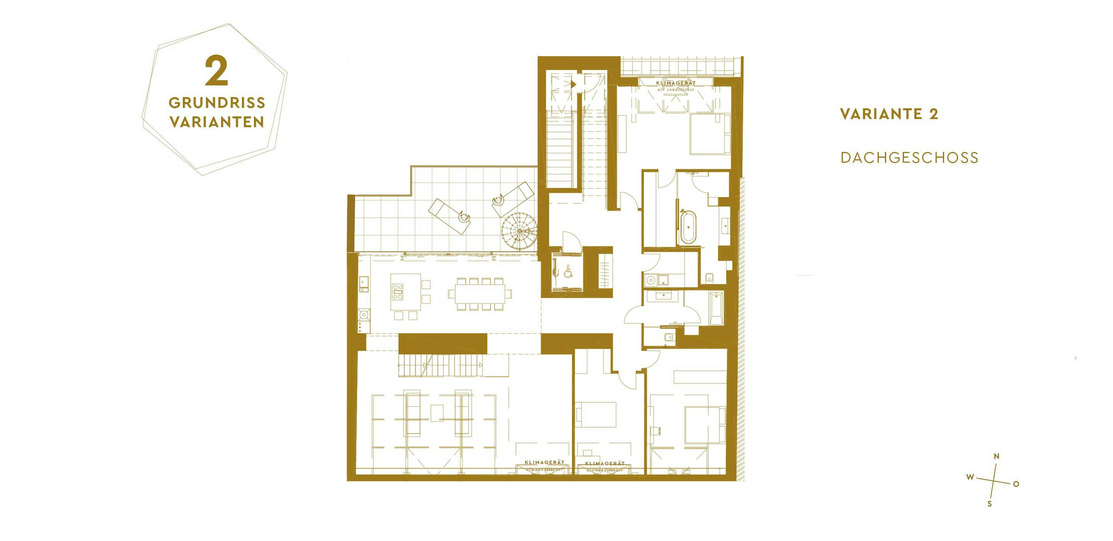
Grundriss




Details
- Gesamtfläche419,9 m²
- Wohnnutzfläche270,1 m²
- Zimmer5
- Stock1. Dachgeschoß
- Raumhöhe5,2 m²
- BauteilArt Nouveau House
- TopPenthouse
- Terrasse32,86 m²
- Dachterrasse116,95 m²
- Kellerabteil2,5 m²
- BaubeginnMärz 2018
- FertigstellungJuni 2021
- BeziehbarQ4 2021
Energie
- Heizwärmebedarf43,54 kWh/m²
- HWB KlasseB
- HeizartFußbodenheizung
- fGEE0,74
Nebenkosten
- Grunderwerbssteuer3.5%
- Eintragungsgebühr1.1%
- Maklerprovision3% zzgl. 20% Ust.
Ähnliche Wohnungen
Anfrage zu Penthouse
Werde CROWND Member für Zugriff zu allen Informationen. Mehr dazu



















