Casa Crownd Casa CROWND - Exklusive Villa auf sechs Etagen im Hietzinger Cottage!

Eckdaten
- 586,9 m²
- 12 Zimmer
- Hochparterre
- Balkon, Terrasse, Dachterrasse
Projekt
Casa Crownd
- 1130 Wien
Beschreibung
Bei diesem Angebot handelt es sich um das Grundstück mit Bestandsobjekt inklusive einer aufrechten Baubewilligung! Die Villa kann als CASA CROWND oder nach Absprache und individuellem Kundenwunsch ausgeführt und schlüsselfertig übergeben werden.
Casa CROWND - Exklusives Villenprojekt auf sechs Etagen im Hietzinger Cottage
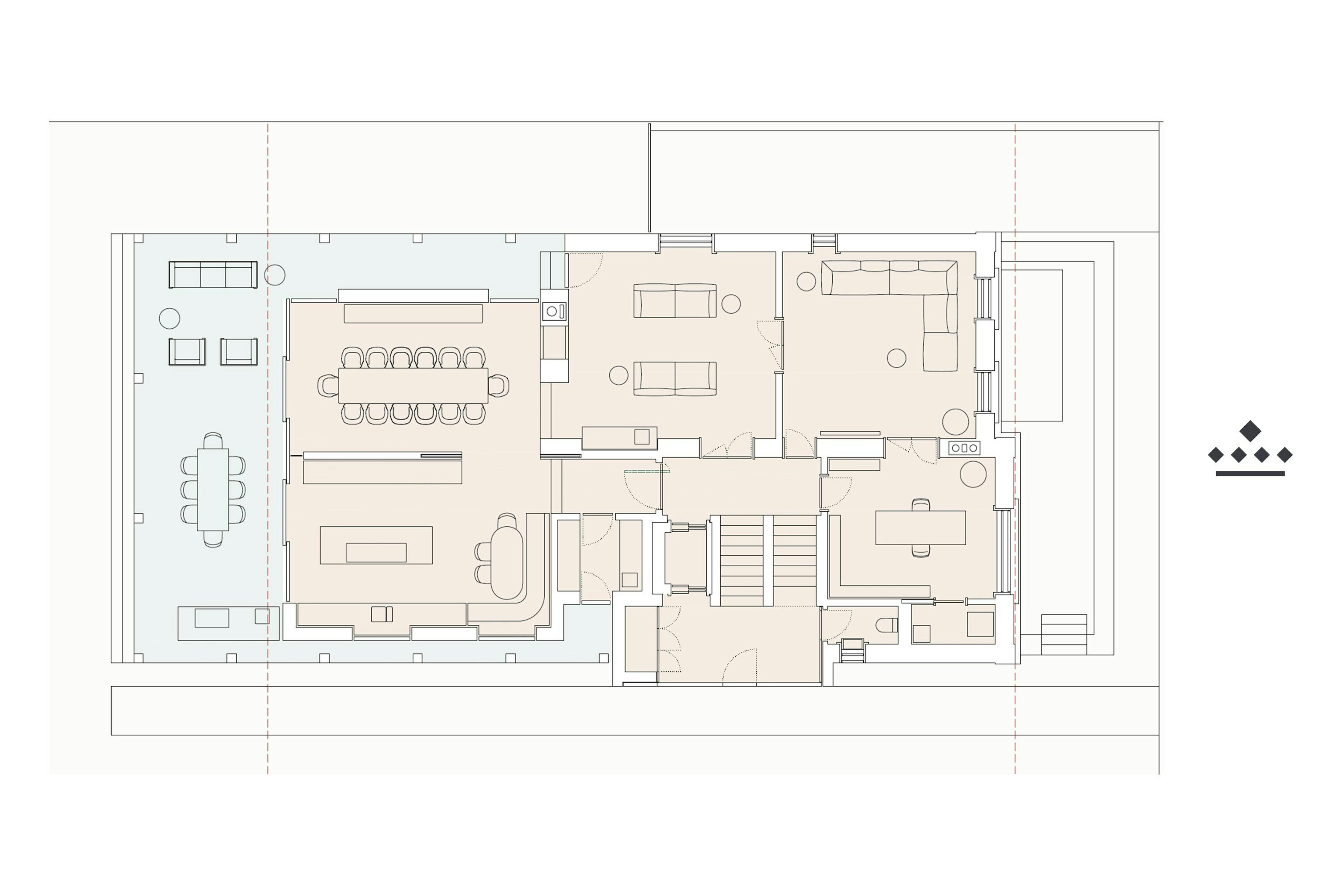
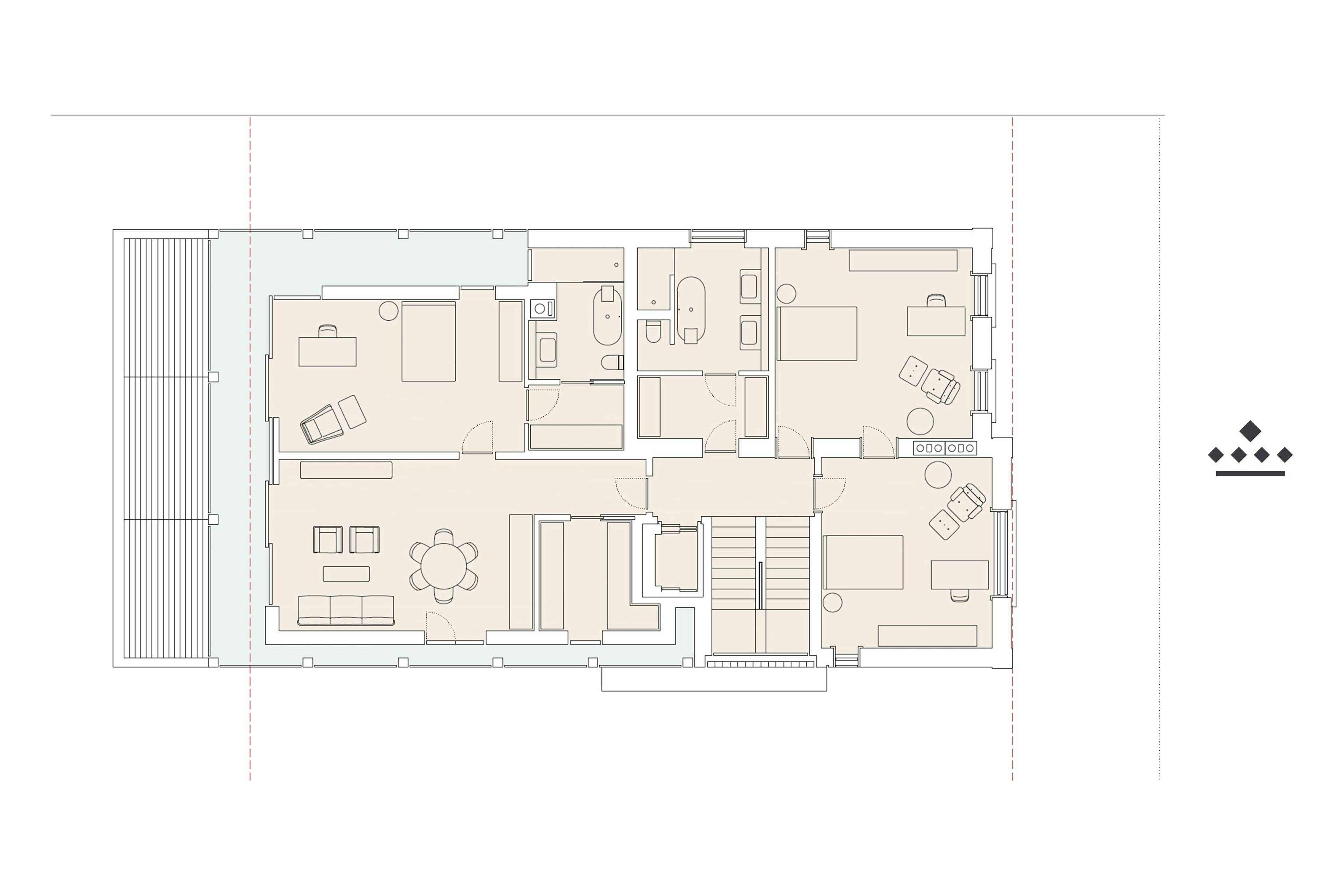
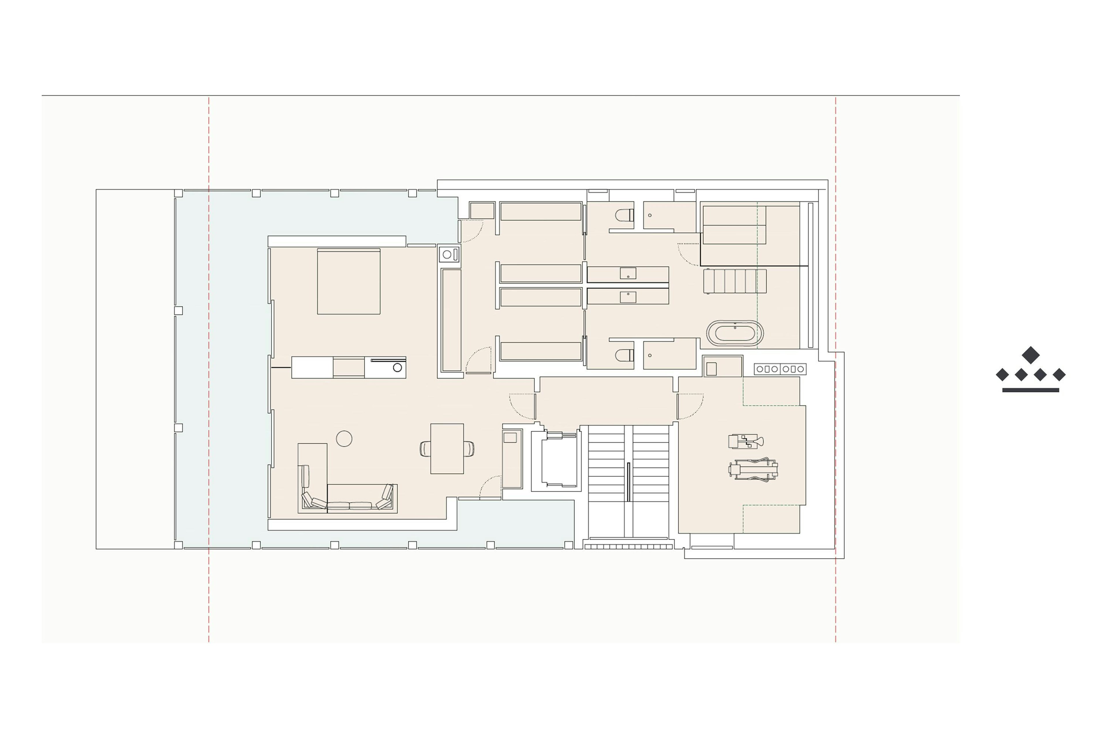
Ein architektonisches Statement auf sechs Ebenen - elegant, einzigartig und kompromisslos luxuriös. Die Villa erstreckt sich über vier Wohnebenen mit modernster Haustechnik. Im Souterrain wurde ein großzügiger Wohnbereich mit direktem Terrassenzugang geplant. Im knapp 166 m² großen Erdgeschoß befindet sich eine offen gestaltete Küche inklusive Essbereich mit Blick über die Terrasse in den großzügig angelegten Garten mit Pool sowie Poolhaus. Ergänzt wird diese Ebene durch ein Kaminzimmer und ein Büro, die gemeinsam ein offenes und zugleich wohnliches Raumgefühl schaffen. Im ersten Obergeschoß befinden sich drei Schlafzimmer, zwei Bäder und ein von Terrassen umgebenes Wohnzimmer. Das zweite Obergeschoß ist dem Masterbereich gewidmet – mit offenem Schlaf- und Wohnkonzept, Sauna, zwei begehbaren Ankleiden, einem luxuriösem Bad sowie einem optionalen Fitnessraum. Krönender Abschluss ist die fast 90 m² große Dachterrasse mit ausreichend Platz für einen Pool - ein Rückzugsort mit atemberaubendem Blick ins Grüne. CASA CROWND – Exklusivität in Vollendung. Highlights CASA CROWND: * großzügige Villa mit ca. 587m² Wohnfläche * eleganter Altbestand mit stilvollem Anbau * 6 Etagen * 12 Zimmer * Toplage im noblen Hietzinger Cottage * Lift * Dachterrasse mit optionalem Pool und Outdoor-Küche * Indoor Spa-Bereich * Fitnessbereich * Pool inklusive Poolhaus * Lounge inklusive Bar und Kamin * 2 separate Wohneinheiten * Garage mit 6 Stellplätzen * großzügiger Garten
Grundriss



Details
- Gesamtfläche1 736,5 m²
- Wohnnutzfläche586,9 m²
- Zimmer12
- StockHochparterre
- Balkon70 m²
- BauteilStadtvilla
- TopStadtvilla
- Terrasse186,3 m²
- Dachterrasse63,9 m²
Energie
- Heizwärmebedarf45,2 kWh/m²
- HWB KlasseB
- fGEE0,68
Nebenkosten
- Grunderwerbssteuer3,5%
- Eintragungsgebühr1,1%
- Kaufvertragserrichtungskosten 1,5% zzgl. 20% USt.
- Maklerprovision3% zzgl. 20% USt.
Ähnliche Wohnungen
Anfrage zu Casa Crownd
Werde CROWND Member für Zugriff zu allen Informationen. Mehr dazu























