Casa Crownd Casa CROWND - Villa im Hietzinger Cottage mit Poolhaus!
Eckdaten
- 586,9 m²
- 12 Zimmer
- Hochparterre
- Balkon, Terrasse, Dachterrasse
Projekt
Casa Crownd
- 1130 Wien
Beschreibung
Bei diesem Angebot handelt es sich lediglich um das Grundstück mit Bestandsobjekt inklusive einer aufrechten Baubewilligung! Die Villa kann nach Absprache und Kundenwunsch ausgeführt und schlüsselfertig übergeben werden.
• 586,9 m² Wohnfläche • 6 Etagen • 10 Zimmer • Hietzinger Cottage • Lift • Dachterrasse mit Pool und Outdoor-Küche • Indoor Spabereich • Fitnessbereich • Pool inklusive Poolhaus • Lounge inklusive Bar und Karmin • 2 separate Wohneinheiten im Untergeschoß • Garage mit insgesamt 6 Stellplätzen • großzügiger Garten • begehbare Ankleiden • eleganter Altbestand mit modernem Anbau
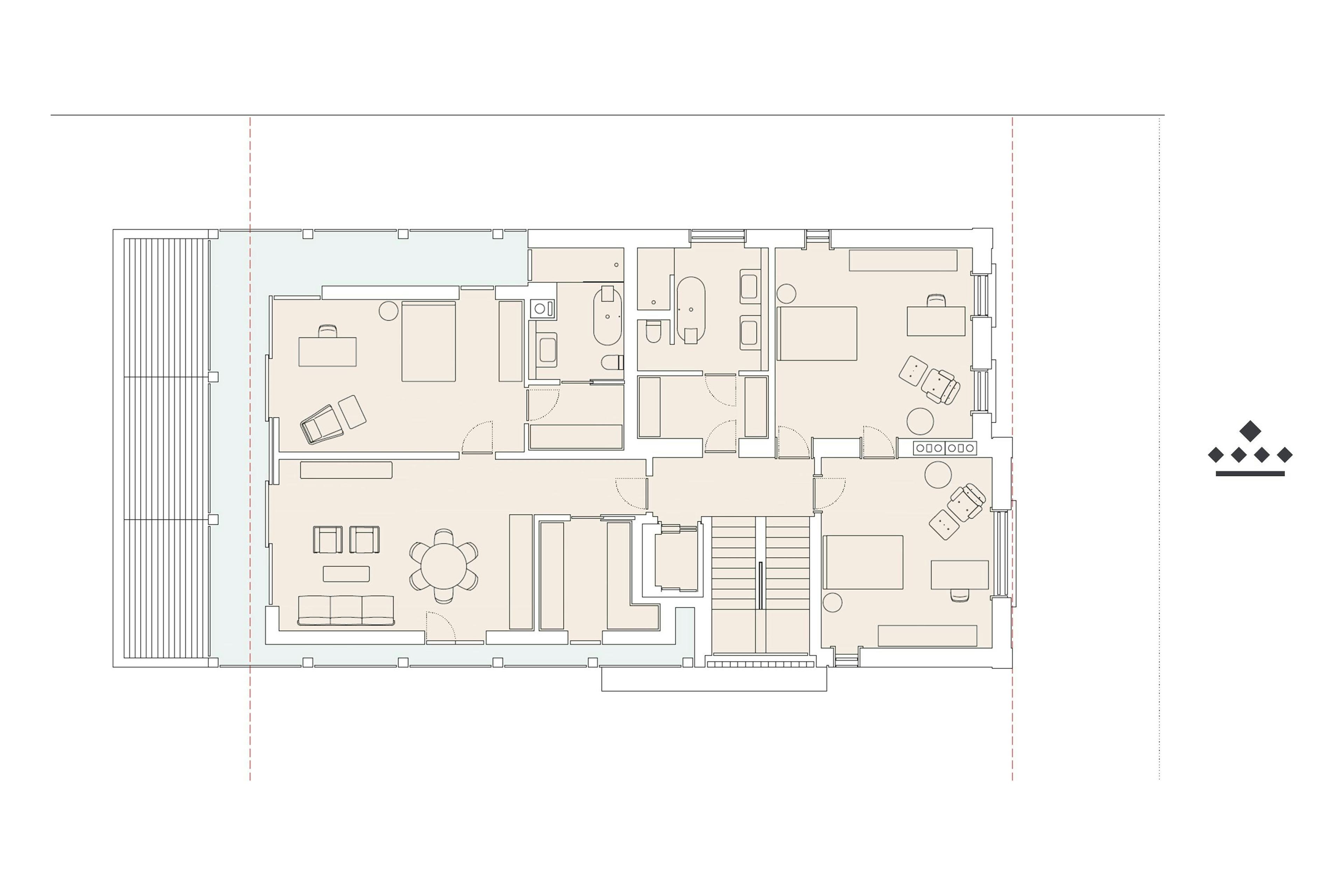
Zum Verkauf gelangt dieses baubewilligte Villenprojekt auf sechs Etagen im Hietzinger Cottage. Die Villa teilt sich auf vier Wohnebenen inklusive Tiefgarage im ersten Untergeschoß auf, wo sich zugleich einer der beiden Technikräume des Hauses befindet. Weiter geht es im Souterrain mit einem knapp 130m² Wohnbereich, dem zweiten Technikraum des Hauses, einer in etwa 110m² großen Garage sowie einer geräumigen Terrasse. Im knapp 166m² großen Erdgeschoß befindet sich eine offen gestaltete Küche inklusive Essbereich mit Blick über die Terrasse in den großzügig angelegten Garten mit Pool sowie Poolhaus. Des weiteren wurde hier auch ein separates Kaminzimmer, ein geräumiges Wohnzimmer und ein Büro geplant. Von der weitläufigen Terrasse gelangt man in den Garten, in dem sich auch einer der beiden Pools inklusive Poolhaus befinden. Im ersten Obergeschoß, der ebenfalls mit einer Freifläche trumpft, befinden sich in Summe drei Schlafzimmer, zwei Bäder mit Badewanne und separater Dusche sowie einem von der Terrasse umgebenen Wohnzimmer. Das zweite Obergeschoß besticht durch das offen gestaltete Hauptschlafzimmer inklusive Wohn-Ess-Bereich und kompakter Küchenzeile. Ein gespiegeltes Badezimmer mit Duschen, WCs und Waschbecken in zweifacher Ausführung mit freistehender Badewanne und Sauna samt zwei anschließender begehbaren Ankleiden wurde ebenso intelligent durchdacht eingeplant. Ein privates Fitnessraum in den eigenen vier Wänden findet hier ebenfalls Platz. Das Herzstück des Hauses - die fast 90m² große Dachterrasse, welche mit einem weitläufigen Sitz und Essbereich ausgestattet ist, befindet sich im dritten und letzten Obergeschoß. Hier wurde Platz für etwas ganz besonderes geschaffen, einen Pool mit Blick in die grüne Umgebung.
Grundriss



Details
- Gesamtfläche1 736,5 m²
- Wohnnutzfläche586,9 m²
- Zimmer12
- StockHochparterre
- Balkon70 m²
- BauteilStadtvilla
- TopStadtvilla
- Terrasse186,3 m²
- Dachterrasse63,9 m²
Energie
- Heizwärmebedarf45,2 kWh/m²
- HWB KlasseB
- fGEE0,68
Nebenkosten
- Grunderwerbssteuer3,5%
- Eintragungsgebühr1,1%
- Kaufvertragserrichtungskosten 1,5% zzgl. 20% USt.
- Maklerprovision3% zzgl. 20% USt.
Ähnliche Wohnungen
Anfrage zu Casa Crownd
Werde CROWND Member für Zugriff zu allen Informationen. Mehr dazu























